家人们,真的是109平,真的是四室(附平面图)!

盛朋评家居 2025-10-07 04:48:58
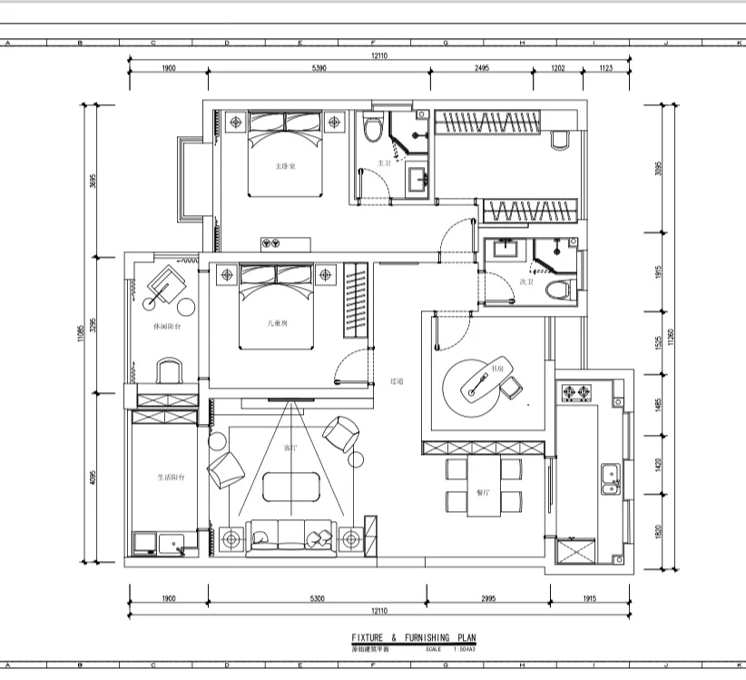
我🏠产证面积131平,套内109平 其实公摊也不小了 原始户型就是四房,其实房间都不大 很多姐妹都说我家看着很温馨、明亮 今天把装修时候的一些经验都分享给大家: 1️⃣对家装风格有追求的,请设计师出图很有必要,作为装修小白真的难以对着毛胚想象装修好的画面,而且装修工序繁多复杂,一不小心就容易踩坑,设计师毕竟有经验,并且可以给出户型改造后的平面图,施工图纸! 2️⃣一定不要着急动工,一定要先确定平面图,确定什么样的背景墙,走什么样的吊顶,阳台要不要打通,是选择中央空调还是风管机。 3️⃣电工进场前,工地走一圈,幻想以后的生活场景来布局插座,例如预留扫地机器人的上下水,还有餐边柜的插座,还有冰箱、空调记得单独走线。 4️⃣瓦工阶段,确定是否通铺,卫生间墙面地面砖是否对缝,是否要做壁龛,可以要求店家出铺贴图确认铺贴效果。 5️⃣家电不一定要先买,但一定要提前确定尺寸,定制柜子的时候很有必要。 6️⃣硬装阶段,原则就是轻硬装,既省花销又简单耐看。 7️⃣施工过程,时间多勤去工地,或者可以请个靠谱的监理。 希望大家都能住进自己的梦中情家🏠

0 阅读:22
盛朋评家居

盛朋评家居

感谢大家的关注